About
Services
Projects
Contact
en
Español
English
About
Services
Projects
Contact
en
Español
English
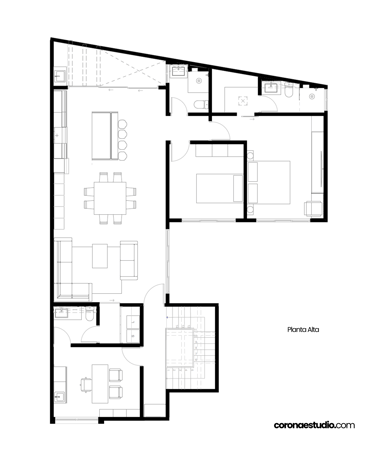
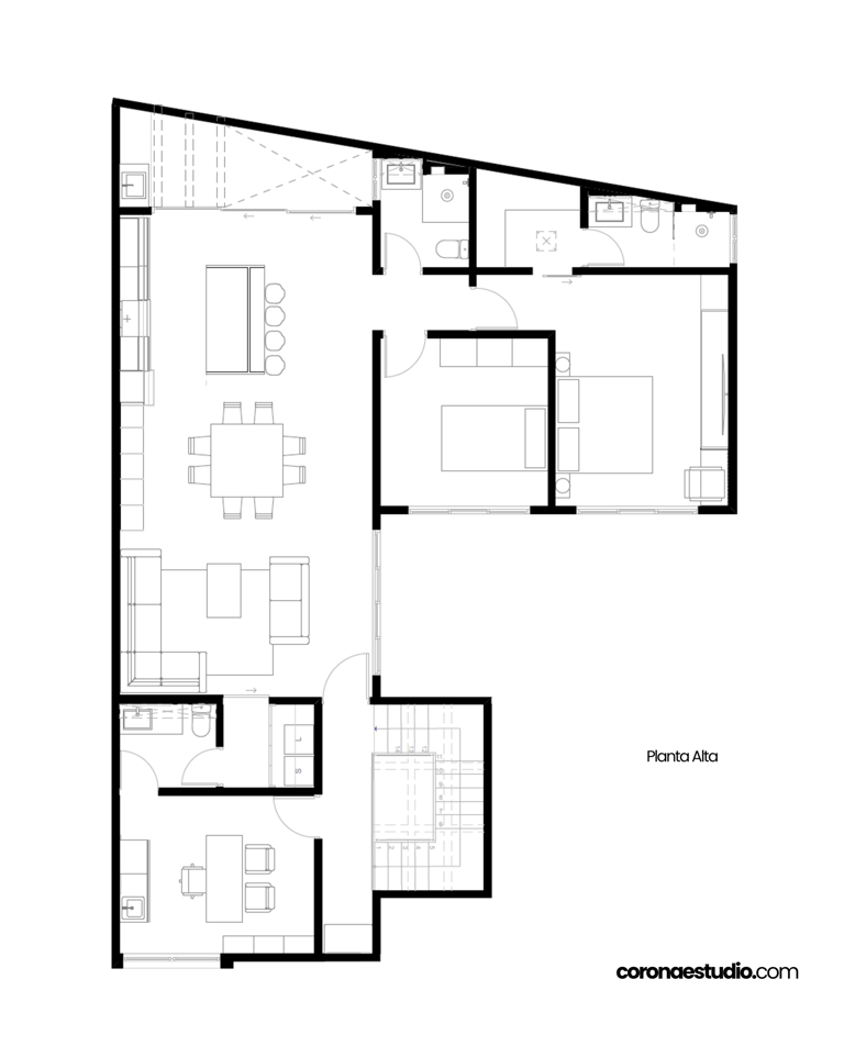
Diseño: Corona Estudio
Ubicación: Tlaxcala, Tlaxcala
Área: 157.49 m2
Año: 2025
CASA AC