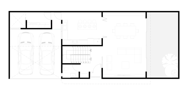
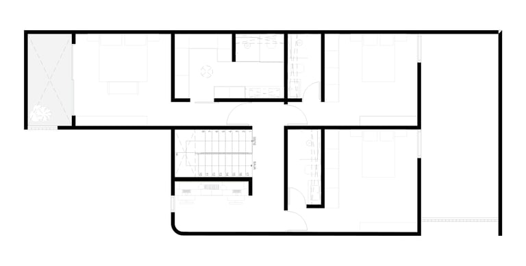
Diseño: Corona Estudio

Ubicación: Tlaxcala, Tlaxcala

Tipo de proyecto: Casa Residencial

Área: 197.28 m2

Año: 2025

CASA MR